Deze uitgebouwde, zowel op de begane grond en eerste verdieping, gezinswoning met verhoogde nok en dakkapel is een pareltje! Met 81 vierkante meter en een energielabel B helemaal klaar voor nieuwe bewoners!
Deze woning is de afgelopen jaren van een compacte tussenwoning verruimd naar een gezinswoning. Een grote woonruimte, open keuken en toch ook een knusse plek om een goed boek te lezen. Allemaal op de begane grond! Verder zijn er drie goede (slaap)kamers en een badkamer. De isolatie is heel goed op orde door onder andere dakisolatie, spouwisolatie achterzijde, geïsoleerd glas, waardoor de maandlasten erg laag zijn.
Locatie
Buiten Wittevrouwen is een dynamische wijk in Utrecht die perfect de charme van het verleden combineert met het comfort van het heden. Gelegen op loopafstand van het levendige centrum, biedt deze wijk een uitstekende locatie met een goede bereikbaarheid via zowel fiets als openbaar vervoer. Wat Buiten Wittevrouwen bijzonder maakt, is de rustige en groene uitstraling, gecombineerd met de urban vibes die je in de vele gezellige cafés en winkels vindt. Om de hoek ligt al de Nachtegaalstraat en binnen enkele minuten sta je op De Neude. Naar de andere kant toe vanuit de Nachtegaalstraat is de Maliebaan en het Wilhelminapark net zo snel te bereiken. Kortom. Ideale locatie!
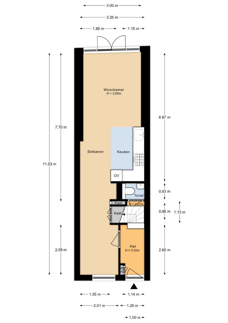
Begane grond
Heerlijk binnenkomen in de ruime hal, waardoor je doorloopt naar de woonruimte. Aan de voorzijde van de woning is een lekker zitje gecreëerd, in eigenlijk de oude woonkamer. Hier kan een werkplek of een leeshoek worden gemaakt. De achterzijde van de woning is in 2015 uitgebouwd. Destijds is ook gelijk overal schuimbeton geplaatst met vloerverwarming. Heerlijk!! Vanuit de openslaande deuren is er gelijk toegang tot de (stads)tuin. De keuken staat in het midden van de woonruimtes opgesteld en de apparatuur, vaatwasser, koel-/vriescombinatie, Quooker, 4-pits gaskookstel met afzuigkap, zijn in de loop der jaren vernieuwd.
Via het bordes met toilet loop je naar de eerste verdieping.
Door de uitbouw aan de achterzijde is hier een heel fijne slaapkamer ontstaan. Allemaal extra meters. Hier is volop privacy in deze goed geïsoleerde ruimte! Verder zijn er aan de voorzijde van de woning een uitstekende tweede slaapkamer en de badkamer. De badkamer is vernieuwd in 2021 waarbij een nieuwe wastafel met kraan, regendouche en het tegelwerk is aangepakt. Hier is naast het toilet ook nog plek voor de wasmachine. Het kan een idee zijn om de wasmachine ook op de grote overloop te plaatsen naast de CV ketel. De ketel is zelf van 2015, echter is de binnenzijde volledig gereviseerd in 2024. Eigenlijk dus een vrijwel nieuwe ketel.
Tweede verdieping
Deze verdieping is in 2022 compleet aangepakt. Er is een nokverhoging toegepast, dakkapel aan de achterzijde en een nieuw dakraam aan de voorzijde geplaatst. Door de toevoeging van dakisolatie, goed geïsoleerd glas en een airconditioning is het hier heerlijk vertoeven. Ofwel als werkkamer, slaapkamer of toch een hobbyruimte! Er is in ieder geval een vrij zicht vanuit de dakkapel.
Buitenleven
Het is een echte stadstuin. Niet groot, wel lekker knus en volledig in de privacy. Doordat aan de achterzijde geen directe bebouwing is en je beschut kan zitten achter je eigen uitbouw is het hier heerlijk vertoeven.
Bijzonderheden:
- Woonoppervlakte circa 81 vierkante meter
- Perceeloppervlakte circa 57 vierkante meter
- Bouwjaar 1910
- Uitbouw begane grond én eerste verdieping (2015)
- Verhoogde nok en dakkapel zolderverdieping (2022)
- Schuim betonnen vloer met vloerverwarming begane grond
- Energielabel B mede door aanwezigheid van deels HR++ glas en dubbel glas, dakisolatie en spouwisolatie achterzijde
- Drie slaapkamers
- CV installatie volledig gereviseerd in 2024
- Airconditioning uit 2022
- Vernieuwde meterkast
- Oplevering gewenst in tweede kwartaal 2025
- Er zal een ouderdoms- en asbestclausule worden opgenomen in de koopovereenkomst